南京梧桐龙凤论坛,xc8866全国论坛,兰州一品阁论坛,修车论坛一品阁
首页
装修案例
酒店空间
办公空间
店铺空间
餐饮空间
娱乐空间
住宅空间
培训机构
装修百科
空间设计
材料施工
常见疑问
问题解答
设计团队
服务保障
施工流程
设计流程
售后服务
关于我们
联系我们
028-83385863
当前位置:
成都工装公司
>
装修百科
>
空间设计
>
空间设计
材料施工
常见疑问
问题解答
国外高清早教机构装修效果图(附施工图纸)
发布时间:05-08 | 浏览量: 人浏览
早教机构门头装修效果
早教机构活动间装修效果
早教机构攀爬区装修效果
早教机构卫生间装修效果
早教机构园区装修效果
早教机构夜景效果展示
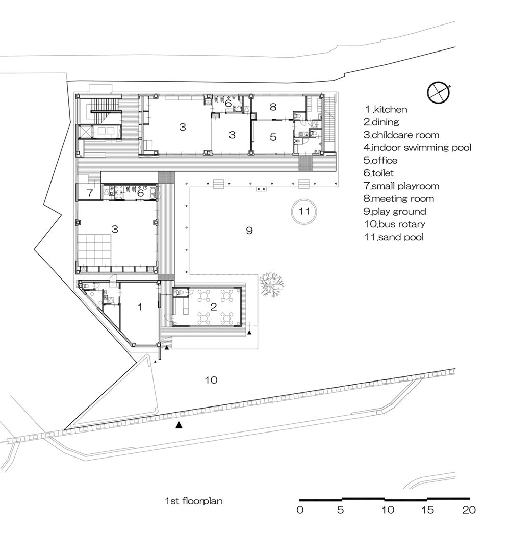
早教机构平面布置施工图
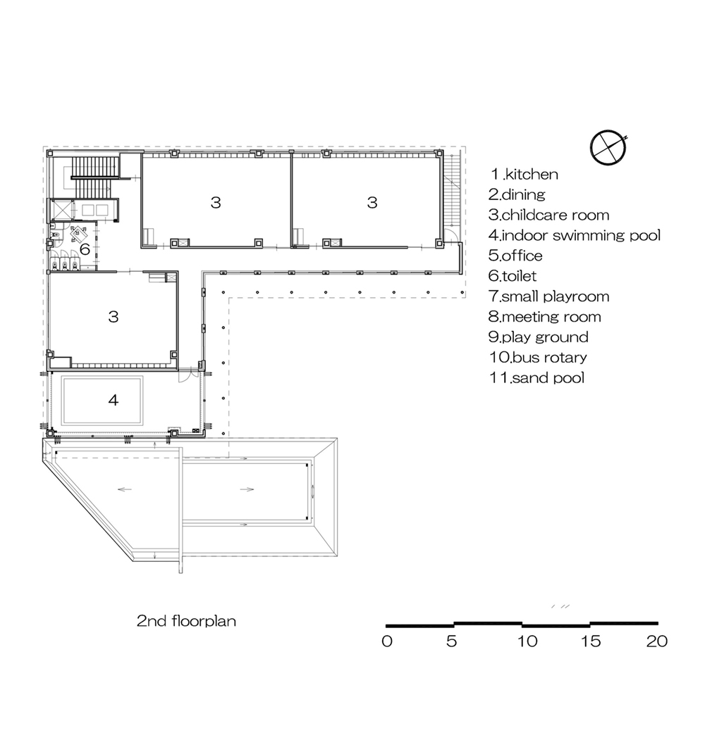
早教机构平面设计规划图
早教机构屋顶施工图
上一篇:
幼儿托育中心装修设计效果图
下一篇:
有关直播间装修的合理建议
申请免费设计
相关资讯
儿童早教中心装修及早教园装修设计要求
查看详情
成都早教中心装修多少钱?设计费多少合适?
查看详情
幼儿托育中心装修设计效果图
查看详情
早教中心装修对环境布置的基本原则
查看详情
唯美的早教中心装修设计案例推荐
查看详情
精选案例
儿童早教托育中心教育机构装修效果图
「早教机构装修效果图」早教中心装修设计效果
关于帝睿
服务保障
关于我们
联系我们
装修案例
酒店空间
办公空间
店铺空间
餐饮空间
娱乐空间
住宅空间
培训机构
资讯百科
空间设计
材料施工
常见疑问
问题解答
帝睿微博
客服微信
028-83385863
Copyright © 2014-2025 成都帝睿建筑工程有限公司 版权所有
蜀ICP备14023125号-1
??
姓名:
手机:
类型:
面积:
028-83385863(全国服务热线)
您也可以致电人工服务热线极速报价 无需等待
??
在线咨询
电话
028-83385863
在线留言
微信扫一扫
返回顶部
儿童早教托育中心教育机构装修效果图
「早教机构装修效果图」早教中心装修设计效果