南京梧桐龙凤论坛,xc8866全国论坛,兰州一品阁论坛,修车论坛一品阁
首页
装修案例
酒店空间
办公空间
店铺空间
餐饮空间
娱乐空间
住宅空间
培训机构
装修百科
空间设计
材料施工
常见疑问
问题解答
设计团队
服务保障
施工流程
设计流程
售后服务
关于我们
联系我们
028-83385863
当前位置:
成都工装公司
>
装修案例
>
住宅空间
>
酒店空间
办公空间
店铺空间
餐饮空间
娱乐空间
住宅空间
培训机构
现代简约小复式公寓装修效果图
发布时间:09-19 | 浏览量: 人浏览
复式公寓备受年轻人们的青睐,尤其是女孩子,他们都喜欢宅在家里活动。本案例推崇的复式公寓装修设计理念正是面向青春,以日?;疃熬蛹依砟钫箍俗笆紊杓?。首先室内具备了厨房、起居室、餐厅、客房、主卧等基本功能需求,这也是年轻人日常居住中所必须的。由原来三件卧室改造成两间套房,其目的是为了设计出一个漂亮的步入式衣帽间和一间大浴室。为了使空间面积得以充分利用不浪费,这里将厨房进行了简化处理,以满足基本功能使用与审美效果并存,旁边则是摆放的餐椅,餐桌选择圆形的目的是可多人同时就餐,与此同时达到不浪费空间和减少菱角产生所带来的碰撞。
公寓楼上的起居室作为重要的休息区域,考虑到年轻人大部分时间都会在此渡过,为了减弱因为空间小所带来的压抑感,这里将室内两个房间的装饰部分分别做了简单处理,以便使效果更佳突出,更佳有舒适度。
小复式公寓 - 二楼客厅装修效果图
小复式公寓 - 二楼电视背景墙装修效果图
小复式公寓 - 卧室装修效果图
小复式公寓 - 主卧装修效果图
小复式公寓 - 楼顶装修设计效果图
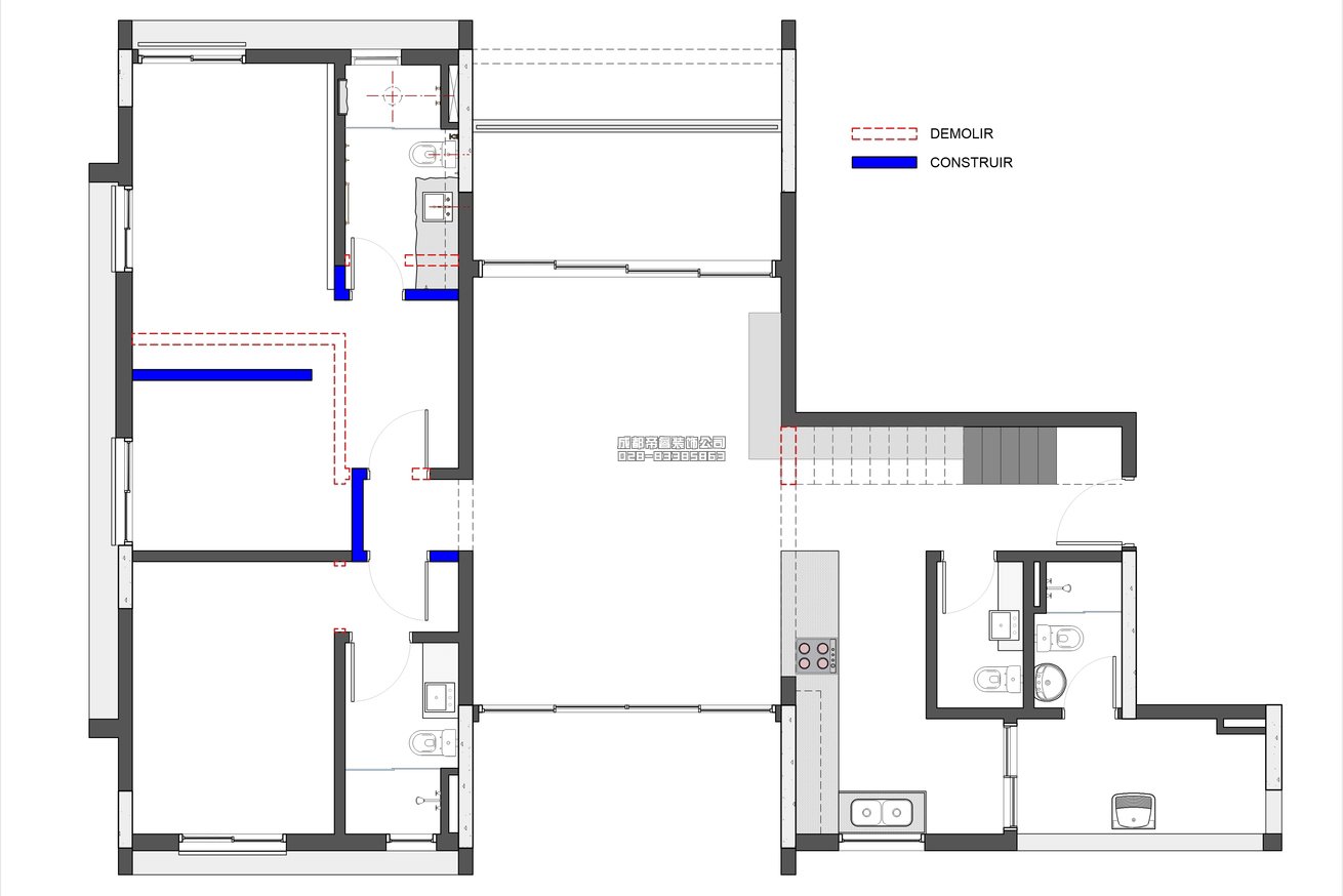
小复式公寓 - 户型平面设计图纸
由于该小复式公寓装修采用的是现代简约风格,因此在屋顶同样也以简单处理,顶面钢结构的组成是由140mm工字钢与50mm矩管搭建而成,顶部位置最后是用5mm双层中空玻璃进行封顶。在这里成都帝睿工装公司温馨提示:钢结构热浸锌施工要求应符合《GB/T13912-2002》标准,锌层厚度不能低于5mm以下薄板。
上一篇:
漂亮的乡村别墅装修效果图
下一篇:
新都富力桃园简欧套三住宅装修完工作品
申请免费设计
相关资讯
成都公寓装修及精装房交房标准全面解析
查看详情
成都公寓装修多少钱一平?整装全包费用明细
查看详情
loft公寓50平小户型装修效果图案例鉴赏
查看详情
小户型住宅工业风设计效果图鉴赏
查看详情
100平米住宅现代风格室内设计效果图赏析
查看详情
住房装修常见的三种方式有哪些优缺点?
查看详情
精选案例
德阳御景湾230平住宅装修设计效果图
温江金河谷179平住宅装修效果图
德阳世家星湖湾260平别墅装修效果图
新都富力桃园简欧套三住宅装修完工作品
漂亮的乡村别墅装修效果图
成都央湖名邸家庭住宅装修完工作品效果
关于帝睿
服务保障
关于我们
联系我们
装修案例
酒店空间
办公空间
店铺空间
餐饮空间
娱乐空间
住宅空间
培训机构
资讯百科
空间设计
材料施工
常见疑问
问题解答
帝睿微博
客服微信
028-83385863
Copyright © 2014-2025 成都帝睿建筑工程有限公司 版权所有
蜀ICP备14023125号-1
??
姓名:
手机:
类型:
面积:
028-83385863(全国服务热线)
您也可以致电人工服务热线极速报价 无需等待
??
在线咨询
电话
028-83385863
在线留言
微信扫一扫
返回顶部
德阳御景湾230平住宅装修设计效果图
温江金河谷179平住宅装修效果图
德阳世家星湖湾260平别墅装修效果图
新都富力桃园简欧套三住宅装修完工作品
漂亮的乡村别墅装修效果图
成都央湖名邸家庭住宅装修完工作品效果