南京梧桐龙凤论坛,xc8866全国论坛,兰州一品阁论坛,修车论坛一品阁

新都富力桃园简欧套三住宅装修完工作品

发布时间:2020-02-07  | 来源:成都帝睿工装公司  | 浏览次数:
新都富力桃园简欧套二住宅装修完工作品
 
       本案例坐落于成都新都富力桃园B7栋705号房,为简欧风格套三精装修住宅。该设计案例意在打造一种简约舒适的居住环境,整个室内在设计格局上非常细致,其表现空间尽显轻奢。万先生作为该房屋居住者,在刚开始与张老师接触之后,就有着许多装修想法,张雄为本案的主要设计工作负责人。在倾听业主真实需求以后,设计师将空间大胆的进行布局。格局的走向及室内布局的清晰,使得在软装方面都游刃有余,在这里我们将电视柜剔除了木色,以最简约的方式与电视背景墙融合,这样也不会显得那么叛逆,反而非常融洽。下面成都帝睿装饰给大家分享该房屋部分的设计图纸细节,我们一起来看看。

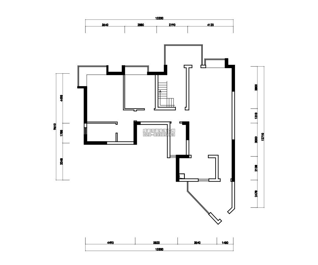
简欧套三住宅家原始结构平面设计图
简欧套三住宅家原始结构平面设计图
 
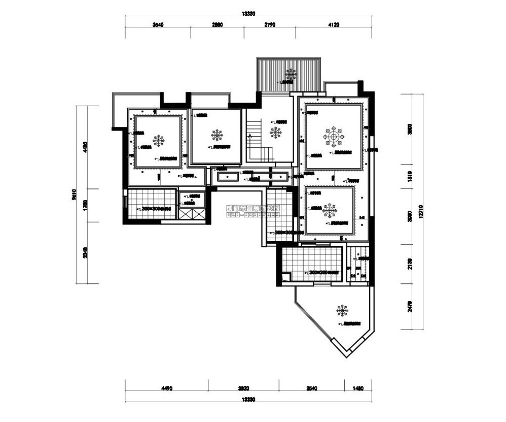
简欧套三住宅家具布置平面设计图
简欧套三住宅家具布置平面设计图
 
简欧套三住宅顶面平面设计图
简欧套三住宅顶面平面设计图
 
简欧套三住宅背景墙立面设计图
简欧套三住宅背景墙立面设计图

 

精选案例

德阳御景湾230平住宅装修设计效果图

德阳御景湾230平住宅装修设计效果图

温江金河谷179平住宅装修效果图

温江金河谷179平住宅装修效果图

德阳世家星湖湾260平别墅装修效果图

德阳世家星湖湾260平别墅装修效果图

现代简约小复式公寓装修效果图

现代简约小复式公寓装修效果图

漂亮的乡村别墅装修效果图

漂亮的乡村别墅装修效果图

成都央湖名邸家庭住宅装修完工作品效果

成都央湖名邸家庭住宅装修完工作品效果

扫码图片
姓名: 手机:
类型: 面积:
028-83385863(全国服务热线) 您也可以致电人工服务热线极速报价 无需等待 弹窗图片